Lägenhetsfakta
Klicka på bilden nedan för större bilder.
Beskrivning: En rymlig lägenhet med bra planlösning!
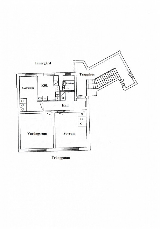
Lägenheten har ett ljust kök med laminatgolv och matplats. Det finns även ett duschrum med delvis kaklade väggar. I det stora vardagsrummet finns parkettgolv. Sovrummen har inbyggda garderober. Samtliga ytskikt i lägenheten är ljusa.
Utrustning: I köket finns en kyl/frys, spiskåpa och en spis med ugn. I duschrummet finns toalett, badrumsskåp, handfat samt en dusch med duschvägg.
Parkeringsmöjligheter: Gatuparkering
Gemensamma utrymmen: Tvättstuga, cykelrum och källarförråd.
Gårdsplats: Fin och skyddad innergård.
Omgivning: Fastigheten ligger mellan Borstahusen och centrala Landskrona med närhet till dessa och Öresund.
Övrigt: Detta är en välordnad fastighet där alla hyresgäster värnar om sin boendemiljö. Angiven hyra är 2025 års hyra. Lägenhetens hyra är under förhandling.
Tillträde: Enligt överenskommelse.
Tränggatan 43
- Gatuadress: Tränggatan 43
- Ort: Landskrona
- Byggår: 1949
- Antal rok: 3
- Yta: 72 kvm
- Kökslösning: Kök
- Våning: 1 av 3
- Balkong: Finns ej
- Hiss: Finns ej
- Trygghetscertifierad: Nej
- Hyra: 7 880 kr/mån
- Värme & Vatten: Ingår i månadshyran.
- Kabel-TV: TV via fiber. Parabolantenn får inte sättas upp.
- Bredband: Bredband finns via stadsnätet.
- Mer om fastigheten
- Skicka intresseanmälan
Förmedlare

Veronica Palliax
Kundansvarig
076-629 45 20













