Lägenhetsfakta
Klicka på bilden nedan för större bilder.
Beskrivning: En fantastisk lägenhet på bästa läge!
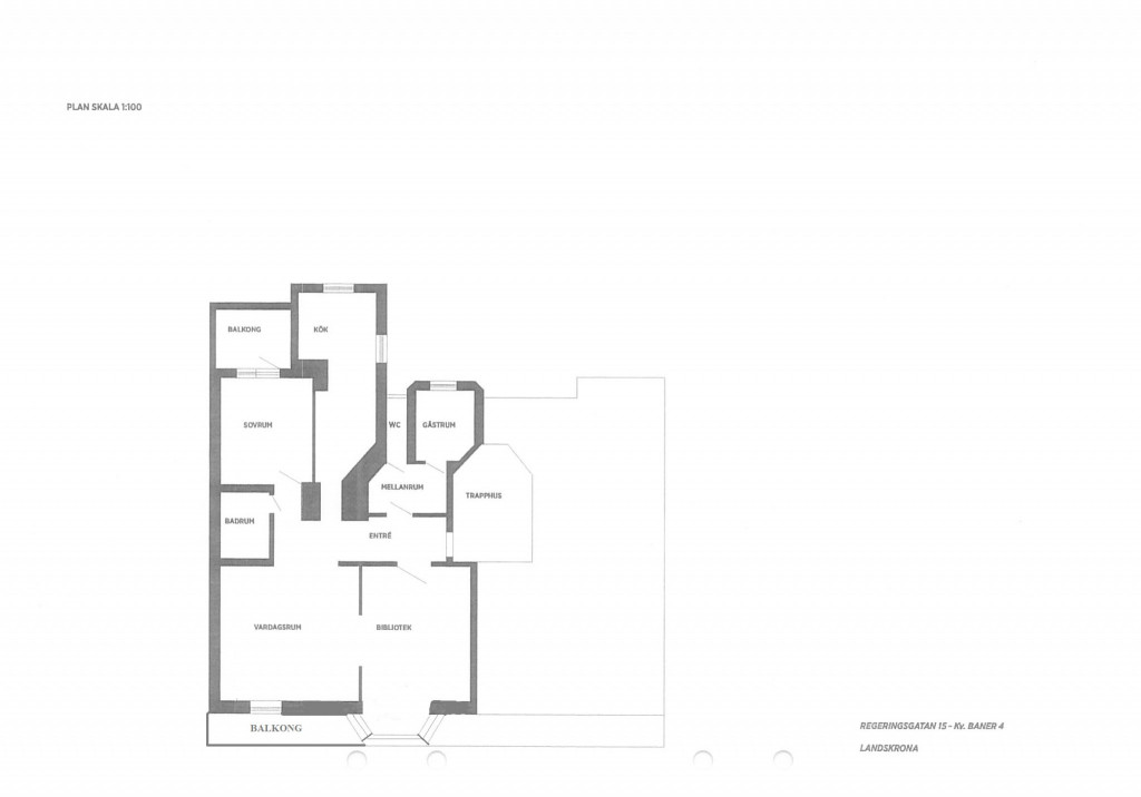
Nyrenoverad lägenhet med ett stort kök med vit köksinredning, helkaklat badrum och självklart även en gästtoalett. Två generösa rum i fil mot Regeringsgatan varav ett ger tillgång till en av lägenhetens balkonger. Rummen präglas av tidstypiska detaljer från sekelskiftet såsom högt i tak, stuckaturer, höga golvsocklar och burspråk. Mot gårdssidan finns ytterligare två sovrum varav ett med balkong. Det tredje sovrummet ligger lite i en "egen avdelning" med en inre hall och extra toaletten direkt i anslutning.
Välkommen till ett hem helt utöver det vanliga!
Utrustning: Kök med diskmaskin, induktionshäll, varmluftsugn, spisfläkt, hel kyl och hel frys. Badrum med duschplats med duschväggar, handfat, badrumsskåp, toalett och handdukstork.
Parkeringsmöjligheter: Ett fåtal parkeringsplatser på fastigheten.
Gemensamma utrymmen: Tvättstuga
Gårdsplats: Mindre innergård
Omgivning: Centralt belägen nära centrum. Granne med Stadsbiblioteket och Saluhallstorget.
Kommunikationer: Bussförbindelse i anslutning till fastigheten.
Övrigt: Detta är en välordnad fastighet där alla hyresgäster värnar om sin boendemiljö. Hösten år 2025 renoverar vi fasaden och balkongerna och byter alla fönster på fastigheten. Angiven hyra är 2025 års hyra.
Tillträde: Enligt överenskommelse.
Regeringsgatan 15
- Gatuadress: Regeringsgatan 15
- Ort: Landskrona
- Byggår: 1915
- Antal rok: 4
- Yta: 128 kvm
- Kökslösning: Kök
- Våning: 2 av 4
- Balkong: Finns
- Hiss: Finns
- Trygghetscertifierad: Nej
- Hyra: 14 407 kr/mån
- Värme & Vatten: Ingår i månadshyran.
- Kabel-TV: Kabel TV via Tele2
- Bredband:
- Mer om fastigheten
- Skicka intresseanmälan
Förmedlare

Veronica Palliax
Kundansvarig
076-629 45 20