Lägenhetsfakta
Klicka på bilden nedan för större bilder.
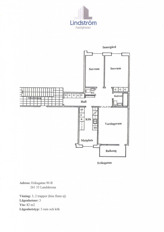
Beskrivning: Den rymliga hallen välkomnar med generösa förvaringsmöjligheter som gör det enkelt att hålla ordning i vardagen. Vardagsrummet bjuder på ett vackert parkettgolv och härifrån når du balkongen i västerläge mot gatan, en perfekt plats att njuta av eftermiddagssolen och den fina utsikten över Slottsparken.
Bostaden erbjuder två lugnt belägna sovrum mot gården. Köket, som är nybyggt 2025, vetter mot Eriksgatan och har en trevlig matplats. Badrummet har delvis kaklade väggar och utöver detta finns även en praktisk extra toalett.
En välplanerad bostad med fina detaljer och ett attraktivt läge
Utrustning: I köket finns spis med induktionshäll, en inbyggnadsugn (varmluft) i arbetshöjd, spisfläkt, diskmaskin och en hel kyl och hel frys. I badrummet finns toalett, tvättställ, badrumsskåp och ett badkar med dusch.
Parkeringsmöjligheter: Garageplats och p-plats finns att hyra på/i anslutning till fastigheten i mån av plats. Även laddplatser i garaget finns att hyra i mån av plats. Möjlighet till gatuparkering finns utanför huset. Det finns även avgiftsbelagd parkering i närheten.
Gemensamma utrymmen: Källare med lägenhetsförråd, cykelförråd, tvättstuga, mangelrum, rum för källsortering.
Gårdsplats: En gemensam uteplats finns.
Omgivning: Mycket nära belägenhet till Slottsparken och Folkets hus.
Kommunikationer: Utanför huset finns busshållplats med anslutning till järnvägsstation.
Övrigt: Engelbrekt 49 är en välordnad fastighet där alla hyresgäster värnar om sin boendemiljö. 3:e våningen = 2 trappor upp.
Tillträde: Enligt överenskommelse.
Eriksgatan 90 B
- Gatuadress: Eriksgatan 90 B
- Ort: Landskrona
- Byggår: 1965
- Antal rok: 3
- Yta: 82 kvm
- Kökslösning: Kök
- Våning: 3 av 4
- Balkong: Finns
- Hiss: Finns ej
- Trygghetscertifierad: Ja
- Hyra: 9 483 kr/mån
- Värme & Vatten: Ingår i månadshyran.
- Kabel-TV: Tele2s basutbud av kabel-TV ingår i hyran.
- Bredband: Finns via stadsnätet.
- Mer om fastigheten
- Skicka intresseanmälan
Förmedlare

Veronica Palliax
Kundansvarig
076-629 45 20





