Lägenhetsfakta
Klicka på bilden nedan för större bilder.
Beskrivning: Unik vindsvåning högst upp med hiss!
Välkommen till denna fantastiskt charmiga vindsvåning, utan insyn, belägen högst upp i fastighet från 1927 med hiss direkt upp.
En möblerbar hall som välkomnar dig hem och skapar en naturlig ingång till bostadens sällskapsdel.
Ett rymligt vardagsrum med vacker parkett och härligt snedtak som ger rummet karaktär och atmosfär.
Ett rofyllt sovrum, även det med parkettgolv. Direkt från hallen nås en stor och praktisk walk‑in‑closet, perfekt för kläder, förvaring eller som dressing room.
Köket är nybyggt 2025 och erbjuder modern vit inredning, generösa arbetsytor och nya vitvaror. Ljusinsläppet gör det till en plats där matlagning och socialt umgänge känns lika naturligt.
Badrummet, även det byggt 2025, är stilrent och genomtänkt med väggar i kakel och elegant svart/vit rutig klinker på golvet, ett badrum där estetiken möter funktion.
Här får du ett hem som kombinerar atmosfären i ett sekelskifteshus (1927) med moderna, genomtänkta materialval och bekvämligheter. Det är bara att flytta in och trivas.
Utrustning: I köket finns spis med induktionshäll och varmluftsugn, spiskåpa, diskmaskin samt halv kyl och halv frys. I duschrummet finns vägghängd toalettstol, tvättställ, spegel, kommod, elektrisk handdukstork och dusch med duschväggar.
Parkeringsmöjligheter: Det finns två enskilda garage på fastigheten. Garageplats finns att hyra på en annan fastighet i kvarteret i mån av plats. Möjlighet till gatuparkering finns utanför huset.
Gemensamma utrymmen: Källare med lägenhetsförråd, cykelförråd, rum för källsortering och tvättstuga.
Gårdsplats: En vacker låst innergård finns.
Omgivning: Nära belägenhet till Wrangelska parken.
Kommunikationer: Cirka 200 meter till närmaste busshållplats med anslutning till järnvägsstation.
Övrigt: Palander 14 är en välordnad fastighet där alla hyresgäster värnar om sin boendemiljö.
Tillträde: Enligt överenskommelse.
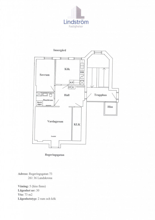
Regeringsgatan 73
- Gatuadress: Regeringsgatan 73
- Ort: Landskrona
- Byggår: 1927 resp. 1936
- Antal rok: 2
- Yta: 73 kvm
- Kökslösning: Kök
- Våning: 5 av 5
- Balkong: Finns ej
- Hiss: Finns
- Trygghetscertifierad: Ja
- Hyra: 10 530 kr/mån
- Värme & Vatten: Ingår i månadshyran.
- Kabel-TV: Tele2s basutbud ingår i hyran. Parabolantenn får inte sättas upp.
- Bredband: Bredband finns via stadsnätet.
- Mer om fastigheten
- Skicka intresseanmälan
Förmedlare

Veronica Palliax
Kundansvarig
076-629 45 20

























